ΙΕΡΟΣ ΝΑΟΣ ΑΓΙΟΥ ΣΤΕΦΑΝΟΥ, 16ος – τέλη 18ου αι. / ST. STEPHANOS, 16th – late 18th c.

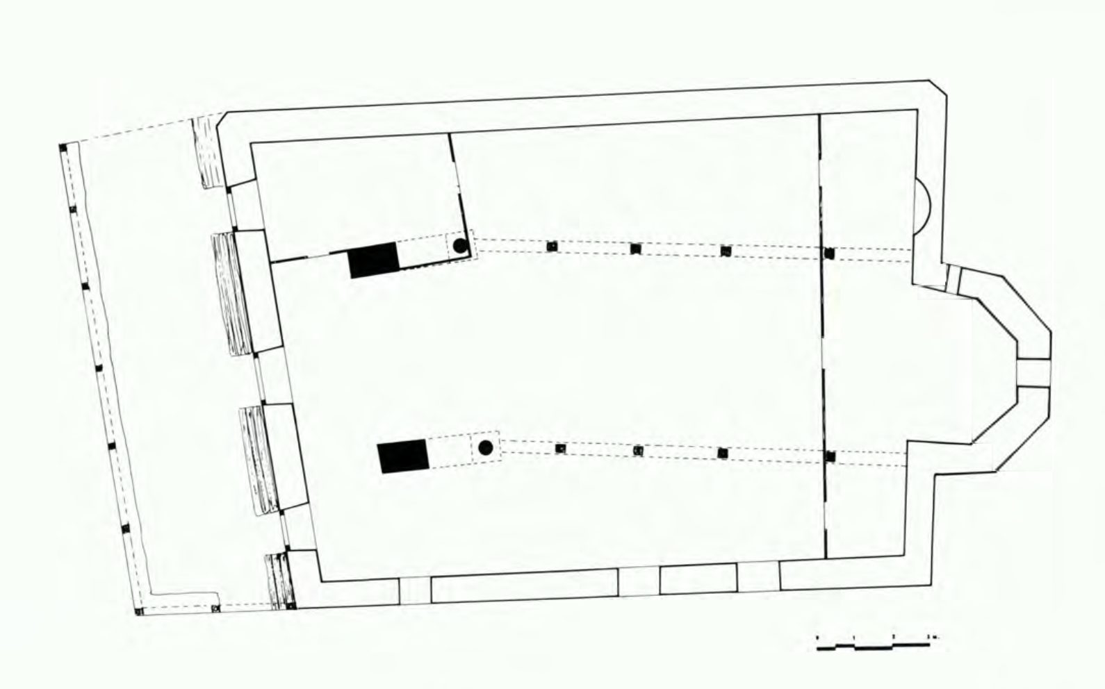
Ο Άγιος Στέφανος, έχει τη μορφή τρίκλιτης βασιλικής με ξύλινα στηρίγματα του τέλους του 18ου αιώνα. Στο δυτικό τμήμα της δύο ζεύγη πεσσών και κιόνων με δίζωνα παλαιοχριστιανικά κιονόκρανα σε διαφορετική κατεύθυνση από τα υπόλοιπα στηρίγματα του ναού υποδεικνύουν πιθανόν την ύπαρξη προγενέστερης παλαιοχριστιανικής βασιλικής. Μία φάση ανακατασκευής χρονολογείται από τις ελάχιστες τοιχογραφίες του ανατολικού τοίχου στον 16ο αιώνα. Το μνημείο, με τα δίζωνα παλαιοχριστιανικά του κιονόκρανα και μία ρωμαϊκή επιγραφή, τοποθετημένη στο δάπεδο πριν από την κεντρική του είσοδο, σώζει απτή μαρτυρία του ύστερου ρωμαϊκού και πρωτοχριστιανικού παρελθόντος της πόλης.

 

St. Stephanos is a three-aisled basilica supported by wooden pillars, dating back to the late 18th c. In its western part, two pairs of piers and columns with double – zone early Christian capitals, facing different directions than the other pillars of the church, may indicate the existence of a former early Christian basilica. One of its reconstruction phases, according to the few mural paintings on the eastern wall, is dated to the 16th c. The monument, with its double – zone early Christian capitals and a Roman inscription paved in the floor before the main entrance, retains genuine evidence of the late Roman and early Christian past of the city.